【交渉中】物件240 上陽町北川内(きたかわうち)
上陽町中心部にほど近い、閑静な住環境に位置する物件です。

売買
130万円
| 物件所在地 | 上陽町北川内(きたかわうち) |
|---|---|
| 建築年 | 昭和26年(1951年) |
| 空き家になった時期 | 令和元年(2019年) |
| 構造 | 木造瓦葺2階建 |
| 土地面積 |
宅地:128.26平方メートル(約38.79坪) 農地:1125平方メートル(約340.31坪) |
| 延床面積 |
77.97平方メートル(約23.58坪) |
| 補修の要否 | 軽微な修繕 |
| 補修の費用負担 | 現状渡 |
| 災害指定区域 | 浸水想定区域 0.5m~3.0m未満 |
土地面積、延床面積は公簿面積を記載しており、実際の面積と異なる場合がございます。相違している場合は現況を優先いたします。
| 電気 | 引込済 |
|---|---|
| 給湯 | 電気温水器 |
| 給水 | 井戸水 |
| トイレ | 汲取り(便座付) |
| 駐車スペース | 1台 |
| 倉庫・物置 | あり |
| 庭 | なし |
| テレビ | 屋上アンテナ |
汲取り(落下式)⇒和式の俗に言うボットン便所です。
汲取り(便座付)⇒洋式便座が付いているボットン便所です。
汲取り(簡易水洗)⇒少なめの水で流す水洗トイレで便槽処理です。
水洗(浄化槽)⇒洋式もしくは和式の水洗トイレで浄化槽処理です。
| 区分 | 距離(目安) | 備考 |
|---|---|---|
| バス停 |
0.5km |
大瀬バス停 (堀川バス 星野線) |
| 市役所・支所 | 0.7km | 上陽支所 |
| 総合病院 | 8.9km | 公立八女総合病院 |
| 個人医院(近隣) |
0.8km |
内科 |
| 消防署・分署 | 1.1km | 八女消防署 上陽分署 |
| 警察署・交番・駐在所 | 0.7km | 八女警察署 北川内駐在所 |
| 小学校区 | 0.9km | 上陽北汭学園 |
| 中学校区 | 0.9km | 上陽北汭学園 |
| 商業施設 | 4.7km | スーパーマーケット |
特記事項
・平成18年頃にほぼ全面的な増改築リフォームが実施されており、屋根瓦や内部床、建具等の状態は比較的良好です。
・小中一貫校が近く、子育て世帯にも安心の住環境が整った立地です。
・前面道路と駐車スペースが狭いため、駐車には慣れが必要となります。
物件写真
玄関
玄関
玄関
和室
和室
浴室
浴室
台所
台所
板の間
板の間
和室
和室
広縁
広縁
トイレ
トイレ
2階廊下
2階洋室(西側)
2階洋室(西側)
2階洋室(東側)
2階洋室(東側)
敷地内
敷地内
外観
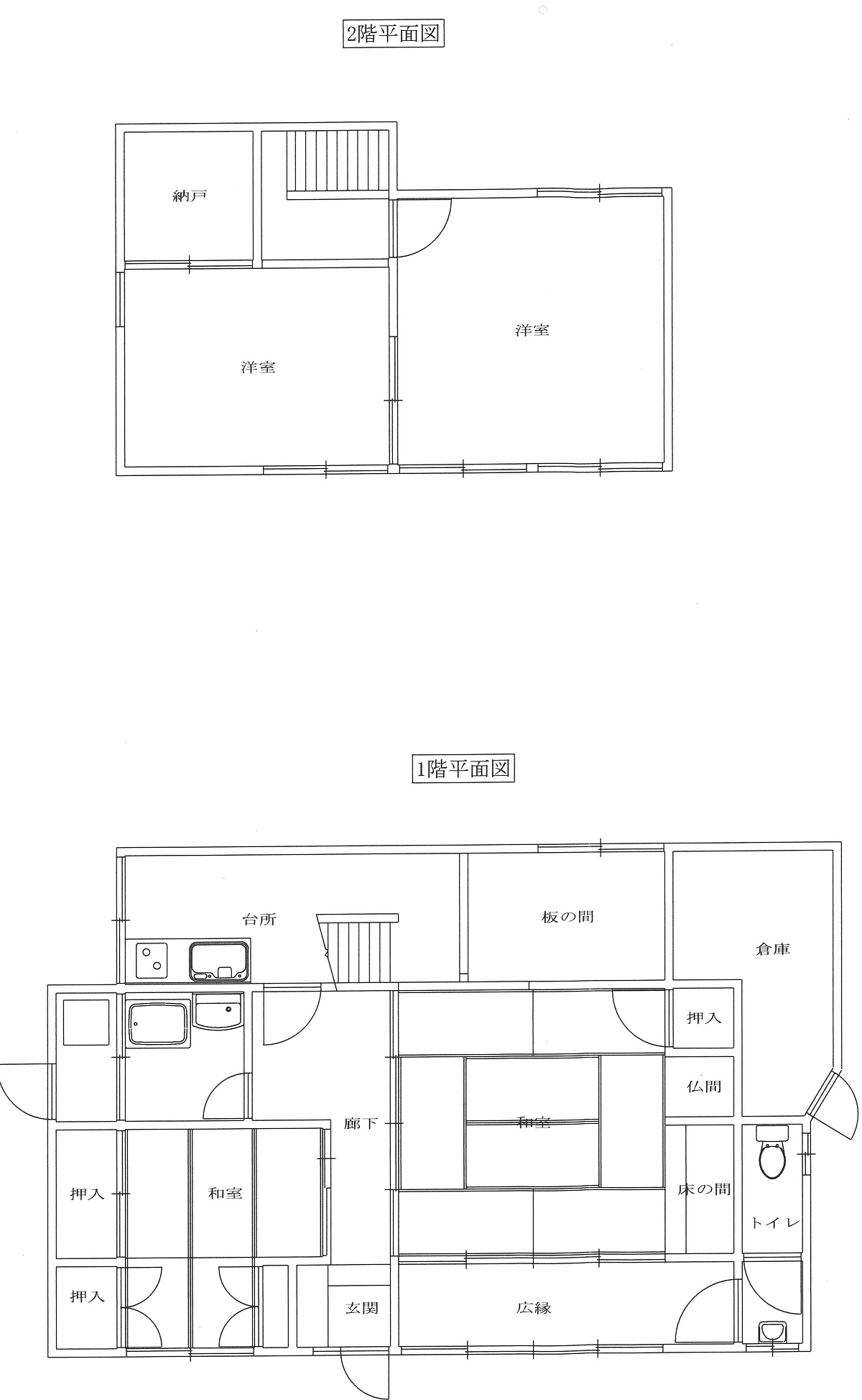
間取り図
間取図
敷地配置図

敷地配置図説明
黄色:敷地 | 赤色:住宅
お問い合わせ先
〒834−8585
八女市本町647番地 定住対策課 定住対策係
電話:0943-24-8013/ファックス:0943-24-9224
お問い合わせ:平日9:00から16:30(土・日・祝日・年末年始を除く)






