物件237 八女市本町(もとまち)
八女市中心部に位置し、1階は広々ガレージ、2階に住居と店舗スペースがある物件です。

| 物件所在地 | 八女市本町(もとまち) |
|---|---|
| 建築年 | 昭和50年(1975年) |
| 空き家になった時期 | 令和2年(2020年) |
| 構造 | 鉄骨造陸屋根2階建 |
| 土地面積 | 宅地:251.67平方メートル(約76.13坪) |
| 延床面積 | 1階 207.23平方メートル 2階 171.56平方メートル 合計 378.79平方メートル(約114.58坪) |
| 補修の要否 | 多少の修繕 |
| 補修の費用負担 | 現状渡 |
| 災害指定区域 | 浸水想定区域 0.5m未満 |
土地面積、延床面積は公簿面積を記載しており、実際の面積と異なる場合がございます。相違している場合は現況を優先いたします。
| 電気 | 引込済 |
|---|---|
| 給湯 | プロパンガス |
| 給水 | 上水道 |
| トイレ | 水洗(下水) |
| 駐車スペース | 5台以上 |
| 倉庫・物置 | あり(ガレージ) |
| 庭 | なし |
| テレビ | 屋上アンテナ |
汲取り(落下式)⇒和式の俗に言うボットン便所です。
汲取り(便座付)⇒洋式便座が付いているボットン便所です。
汲取り(簡易水洗)⇒少なめの水で流す水洗トイレで便槽処理です。
水洗(浄化槽)⇒洋式もしくは和式の水洗トイレで浄化槽処理です。
| 区分 | 距離(目安) | 備考 |
|---|---|---|
| バス停 | 0.1km | 福島バス停 (堀川バス 羽矢線・星野線) |
| 市役所・支所 | 0.4km | 八女市役所 |
| 総合病院 | 0.8km | 公立八女総合病院 |
| 個人医院(近隣) | 0.3km | 内科 |
| 消防署・分署 | 0.6km | 八女消防署 消防本部 |
| 警察署・交番・駐在所 | 0.8km | 福岡県警 八女警察署 |
| 小学校区 | 0.5km | 福島小学校 |
| 中学校区 | 0.6km | 福島中学校 |
| 商業施設 | 0.3km | スーパーマーケット |
・1階がガレージとなっており、駐車以外にも多様な使い方が考えられます。
・2階北側には、元々スナックを営業していた店舗スペースがあります。
・ガレージには井戸ポンプが設置されていますが、現状では使用不可となっています。
・スナック部分は、元々井戸ポンプを使用していたため、現在は給水設備がありません。
・水道、ガス、電気などは、使用可能か専門業者などによる事前確認が必要です。
ボイラーや給湯器、井戸ポンプなどの設備関係につきましては、交換が必要になる場合が多いです。
玄関
玄関
玄関
洋室
洋室
和室(東側)
和室(東側)
トイレ
トイレ
トイレ
和室(北側)
和室(北側)
洗面台
トイレ
浴室
ダイニング
ダイニング
キッチン
和室続き間(西側)
和室続き間(西側)
和室続き間(西側)
和室続き間(東側)
和室続き間(東側)
和室続き間(東側)
広縁
広縁
バルコニー
バルコニー
玄関前スペース
店舗スペース
店舗スペース
店舗スペース
店舗スペース
店舗スペース
店舗スペース
店舗スペース
店舗スペース
店舗スペース
店舗トイレ
店舗奥洋室
店舗奥洋室
店舗室外機置場
店舗室外機置場
ガレージ
ガレージ
ガレージ
ガレージ
ガレージトイレ
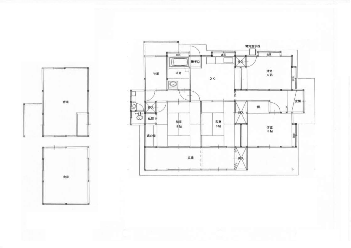
間取り図
間取図
敷地配置図

敷地配置図説明
黄色:敷地 | 赤色:住宅
お問い合わせ先
〒834−8585
八女市本町647番地 定住対策課 定住対策係
電話:0943-24-8013/ファックス:0943-24-9224
お問い合わせ:平日9:00から16:30(土・日・祝日・年末年始を除く)






